Top.Mail.Ru

До конца апреля: Заключите договор на строительство дома и получите проект в подарок!
Статьи и новости

Проект двухэтажного дома с гаражом: обзор решений для комфортной жизни семьи

Запрос «проект двухэтажного дома с гаражом» стабильно входит в число самых популярных среди будущих владельцев загородной недвижимости. И это логично: два этажа позволяют грамотно разделить зоны отдыха и активной жизни, а встроенный гараж делает дом максимально удобным в эксплуатации в любое время года.
Рассмотрим два современных решения — Проект двухэтажного дома «Современная классика» 161,15 м² с гаражом и Двухэтажный дом «Бастион» 181,49 м² — 6 спален, которые отлично демонстрируют разные подходы к планировке и организации пространства.

Проект двухэтажного дома «Современная классика» 161,15 м² с гаражом

Этот проект — пример сбалансированного дома для семьи из 4–6 человек. Общая площадь 161,15 м² позволяет разместить всё необходимое без ощущения перегруженности.

Планировка 1 этажа

На первом этаже традиционно располагается общественная зона:
  • просторная гостиная (14,53 м²)
  • кухня (12,80 м²)
  • санузел
  • прихожая и тамбур
  • котельная
  • встроенный гараж площадью более 32 м²
Гараж интегрирован в общий контур дома и имеет удобный вход внутрь, что особенно важно в климате Пермского края — зимой можно попасть в дом, не выходя на улицу.
Кухня и гостиная расположены рядом, что позволяет объединить пространство или оставить его частично изолированным — в зависимости от пожеланий заказчика.

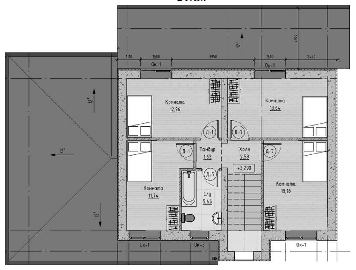
Планировка 2 этажа

Второй этаж — приватная зона:
  • 4 спальни
  • холл
  • гардероб
  • полноценный санузел
Такое распределение делает дом удобным для семьи с детьми: родители могут разместиться в одной спальне, а остальные комнаты использовать под детские или кабинет.
Проект подходит тем, кто ищет рациональный, функциональный и современный проект двухэтажного дома с гаражом без избыточной площади.

Двухэтажный дом «Бастион» 181,49 м² — 6 спален

Если требуется больше пространства и максимальная вместительность — стоит обратить внимание на дом «Бастион».
Площадь 181,49 м² и 6 спален делают его отличным решением для большой семьи или для тех, кто планирует отдельные комнаты под кабинет, гостевую и хобби-зоны.

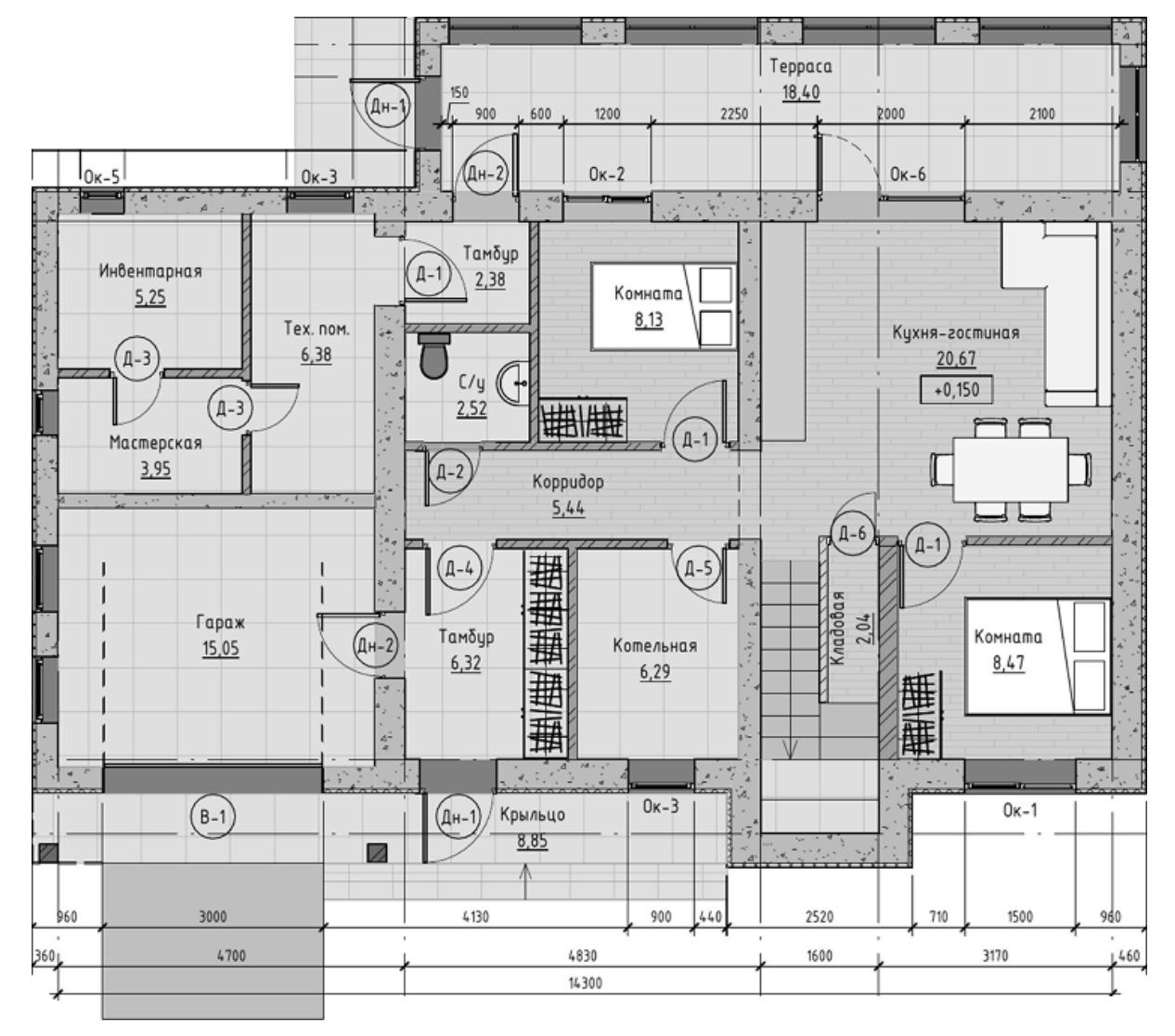
Особенности первого этажа

На первом уровне располагаются:
  • кухня-гостиная
  • отдельная комната (может использоваться как спальня или кабинет)
  • котельная
  • санузел
  • тамбур и прихожая
  • гараж
Такое решение удобно тем, что одна из спален находится на первом этаже — это комфортно для пожилых членов семьи или гостей.

Второй этаж

На втором этаже размещены:
  • 4 спальни
  • холл
  • санузел
  • гардеробная
Планировка продумана таким образом, чтобы комнаты были изолированы и обеспечивали приватность каждому члену семьи.

Почему выбирают проект двухэтажного дома с гаражом

  1. Экономия площади участка — дом растёт вверх, а не вширь.
  2. Чёткое зонирование: первый этаж — общая зона, второй — личное пространство.
  3. Защита автомобиля от погодных условий.
  4. Возможность дополнительного хранения (инструменты, велосипеды, сезонные вещи).
Для подбора других решений можно изучить полный каталог проектов домов, где представлены варианты различной площади и конфигурации.

Какой проект выбрать?

  • Если нужна компактность и универсальность — подойдёт «Современная классика».
  • Если важна вместительность и большое количество спален — оптимален «Бастион».
Оба проекта соответствуют современным требованиям к энергоэффективности, удобству и функциональности.
Выбор зависит от состава семьи, бюджета и образа жизни — но в любом случае двухэтажный дом с гаражом остаётся одним из самых практичных решений для загородного строительства.