Top.Mail.Ru
Проекты

Двухэтажный дом «Бастион» 181,49 м² — 6 спален

Площадь: 181,49 м² (с крыльцом и закрытой террасой)
Количество спален: 6
Цена: от 10 851 000 руб.
Срок строительства: от 5 месяцев

Просторный дом для большой семьи или собственного дела

«Бастион» — это капитальный двухэтажный дом площадью 181,49 м², который сочетает жилой комфорт и функциональность. Проект идеально подойдет для большой семьи, организации гостевых комнат или совмещения проживания с мастерской/бизнесом.
Главная особенность — 6 изолированных спален и полноценный рабочий блок.

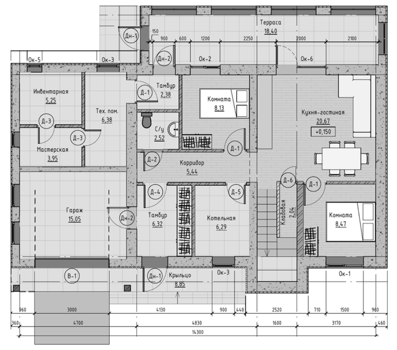
Планировка 1 этажа

Согласно техническому описанию проекта, первый этаж включает:

Общая зона

  • Кухня-гостиная — 20,67 м² с кладовой 2,04 м²
  • Закрытая терраса — 18,4 м² (всесезонная зона отдыха)

Рабочий блок

  • Мастерская — 3,95 м²
  • Инвентарная — 5,25 м²
  • Отапливаемый гараж — 15,05 м²

Жилой блок

  • Спальня — 8,13 м²
  • Спальня — 8,47 м²

Хозяйственный узел

  • Тех. помещение — 6,38 м²
  • Котельная — 6,29 м²
  • Тамбуры — 6,32 м² и 2,38 м²
  • Санузел — 2,52 м²
  • Коридор — 5,44 м²

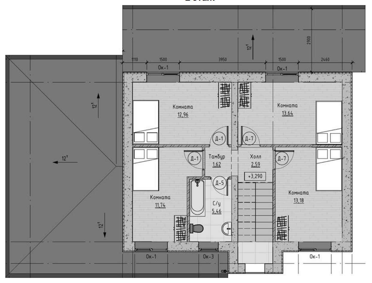
Планировка 2 этажа

Второй этаж — приватная зона для отдыха:
  • 4 спальни:
  • 13,64 м²
  • 13,18 м²
  • 11,74 м²
  • 12,96 м²
  • Просторный санузел — 5,46 м²
  • Холл — 2,59 м²
  • Тамбур — 1,62 м²

Преимущества проекта

✔ 6 изолированных спален
✔ Закрытая терраса 18,4 м²
✔ Гараж + мастерская + инвентарная
✔ Разделение активной и жилой зон
✔ Подходит для большой семьи или домашнего бизнеса

Конструктив и технологии

Проект реализуется по капитальной технологии:
  • Свайно-ростверковый фундамент с монолитными полами
  • Стены из газоблока D500 (1 и 2 этаж)
  • Железобетонные перекрытия
  • Вальмовая кровля (4 ската), утепление 200 мм (эковата)
  • Металлопластиковые окна (профиль 70 мм)
  • 2 входные двери с терморазрывом
  • Отопление: теплый пол (1 этаж) + радиаторы (2 этаж)

Комплектации и стоимость

Проект доступен в вариантах:
  • Тёплый контур (черновая отделка) — 10 851 000 руб.
  • WhiteBox (предчистовая отделка) — 12 800 000 руб.
  • Чистовая отделка — 16 780 000 руб.
В стоимость входит крыльцо и закрытая терраса.

Закажите расчет строительства

Хотите узнать точную стоимость строительства дома «Бастион» на вашем участке?
👉 Оставьте заявку на консультацию — подготовим индивидуальный расчет, подберем комплектацию и ответим на все вопросы.