Запрос «проекты одноэтажных домов с террасой» стабильно входит в число самых популярных среди тех, кто планирует строительство загородного жилья. Терраса расширяет полезное пространство дома, создаёт дополнительную зону отдыха и делает архитектуру более выразительной.
Одноэтажные дома с террасой — это оптимальный формат для комфортной жизни: без лестниц, с удобной планировкой и прямым выходом на участок.
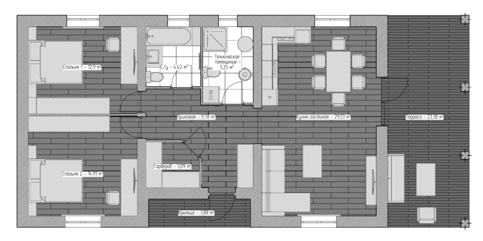
Разбор проекта: «Резиденция комфорта» 83,75 м² с террасой
В качестве основного примера рассмотрим Проект одноэтажного дома «Резиденция комфорта» 83,75 м² с террасой — сбалансированное решение для семьи из 3–4 человек.
Общая площадь и архитектура
- Площадь дома — 83,75 м²
- Просторная терраса — 23,38 м²
- Компактное крыльцо — 3,88 м²
Терраса почти 23 м² становится полноценным продолжением гостиной. В тёплое время года это зона для отдыха, семейных ужинов и приёма гостей.
Планировка дома
Согласно представленной планировке, дом грамотно разделён на функциональные зоны.
1. Общая зона — кухня-гостиная 29,53 м²
Центром дома является просторная кухня-гостиная. Это открытое пространство объединяет столовую и зону отдыха. Большие окна и выход на террасу обеспечивают естественное освещение и визуальное расширение пространства.
Такое решение делает дом современным и удобным для жизни.
2. Приватная зона — две спальни
В проекте предусмотрены:
- Спальня 1 — 12,9 м²
- Спальня 2 — 14,91 м²
Комнаты расположены в противоположной части дома от гостиной, что обеспечивает тишину и уединение.
3. Функциональные помещения
- Санузел — 4,42 м²
- Техническое помещение — 5,25 м²
- Гардероб — 3,09 м²
- Прихожая — 9,78 м²
Наличие отдельного технического помещения — важное преимущество: коммуникации не занимают жилую площадь. Гардероб и просторная прихожая делают дом удобным для постоянного проживания.
Почему проекты одноэтажных домов с террасой так востребованы?
- Терраса увеличивает полезное пространство.
- Улучшается архитектурная выразительность дома.
- Появляется дополнительная зона отдыха без увеличения стоимости капитального строительства.
- Дом гармонично вписывается в загородную среду.
Другие популярные проекты с террасой
Если требуется большая площадь, можно рассмотреть:
- Одноэтажный дом «Лотос» — 98,3 м² + терраса 15,8 м² — просторный вариант с удобной планировкой для семьи.
- Для компактного формата отлично подойдёт Одноэтажный дом «Патио» 53,42 м² + терраса 24 м² — небольшая жилая площадь компенсируется большой зоной отдыха.
- Тем, кто рассматривает дома более 100 м², стоит обратить внимание на Одноэтажный дом «Солярис» — 104,72 м² + терраса 15 м² — современное решение с продуманной архитектурой.
Больше вариантов можно посмотреть в Каталоге проектов домов.
Кому подойдёт «Резиденция комфорта»?
Проект идеально подходит:
- семье из 3–4 человек;
- для постоянного проживания;
- для загородного дома выходного дня;
- тем, кто ценит компактность и функциональность.
Площадь 83,75 м² позволяет рационально использовать бюджет строительства, при этом дом остаётся полноценным и удобным.
Итог
Проекты одноэтажных домов с террасой — это сочетание практичности и эстетики. Терраса делает дом более живым и комфортным, а грамотная планировка, как в проекте «Резиденция комфорта», обеспечивает удобство для всей семьи.
Выбирая дом с террасой, вы получаете не просто жильё, а пространство для отдыха, общения и комфортной жизни.