Top.Mail.Ru
Проекты

Проект одноэтажного дома «Дельта» 108,51 м² с 3 спальнями

Одноэтажный дом «Дельта» — это функциональный проект площадью 108,51 м² с крыльцом, рассчитанный на комфортное проживание семьи из 3–5 человек. Дом сочетает компактные габариты, три изолированные спальни и просторную зону гостиной, что делает его отличным решением как для постоянного проживания, так и для загородного дома.
Цена строительства: от 6 255 000 руб.
Срок строительства: от 3 месяцев

👉 Получить консультацию по проекту «Дельта»:
Записаться на консультацию

Архитектура и внешний вид

Дом выполнен в современном лаконичном стиле: аккуратная двускатная кровля, строгие фасады и симметричный входной узел с крыльцом. Компактная форма позволяет удобно разместить дом даже на небольшом участке, при этом сохранить место для террасы, парковки или зоны отдыха.
Большие оконные проёмы обеспечивают хорошее естественное освещение внутренних помещений, а продуманная посадка дома позволяет легко организовать будущую террасу с выходом из гостиной.

Планировка: максимум пользы с каждого метра

Проект отличается продуманным функциональным зонированием.

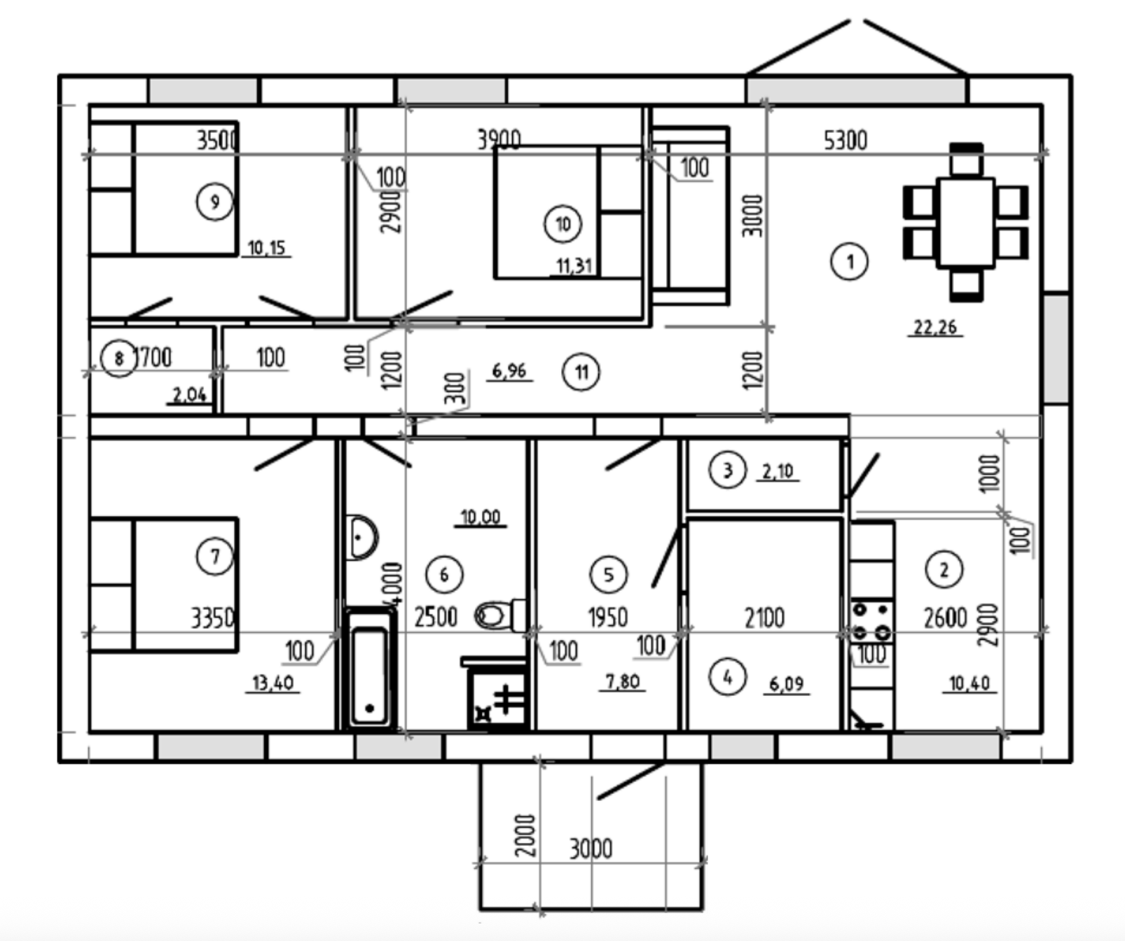
1. Кухня и гостиная-столовая — 34,76 м²

  • Изолированная кухня — 10,40 м²
  • Кладовая при кухне — 2,10 м²
  • Просторная гостиная-столовая — 22,26 м²
  • Предусмотрен выход на будущую террасу
Такое решение позволяет разделить зону приготовления пищи и основное пространство отдыха, сохранив удобство и приватность.

2. Спальный блок — 36,90 м²

  • Мастер-спальня — 12,19 м² с личным гардеробом
  • Две дополнительные спальни — 13,40 м² и 11,31 м²
Три полноценные изолированные комнаты делают дом удобным для семьи с детьми или позволяют оборудовать кабинет.

3. Большая ванная комната — 10,00 м²

Редкое преимущество для домов такого формата — просторный санузел. Здесь можно разместить ванну, душевую зону, систему хранения и стиральную машину без ощущения тесноты.

4. Входная и хозяйственная группа — 20,85 м²

  • Прихожая — 7,80 м²
  • Коридор — 6,96 м²
  • Техническое помещение — 6,09 м²
Наличие отдельного техпомещения позволяет разместить инженерное оборудование и сохранить порядок в жилой зоне.

Конструктив и технологии строительства

Дом строится из газоблока D500:
  • Наружные стены — 400 мм
  • Перегородки — 100 мм
  • Несущие перегородки — 300 мм
Фундамент — свайно-ростверковый с монолитными полами.
Кровля — двускатная, металлочерепица.
Перекрытие утеплено (200 мм).
Металлопластиковые окна (профиль 70 мм).
Входная дверь с терморазрывом.

Комплектации дома

Проект доступен в нескольких вариантах:

1. Тёплый контур — от 6 255 000 руб.

  • Фундамент, стены, кровля
  • Окна и входная дверь
  • Вывод коммуникаций
  • Вентиляция

2. WhiteBox — от 7 750 000 руб.

Дополнительно:
  • Отопление (теплый пол, электрокотел 9 кВт)
  • Разводка коммуникаций
  • Оштукатуривание стен
  • Сухая стяжка пола

3. Чистовая отделка — от 8 510 000 руб.

  • Фасад «Короед» + покраска
  • Натяжные потолки
  • Напольные покрытия (ламинат, керамогранит)
  • Межкомнатные двери
  • Сантехника

Преимущества проекта «Дельта»

✔ Три спальни в доме до 85 м²
✔ Просторная ванная 10 м²
✔ Кладовая и гардероб
✔ Отдельное техпомещение
✔ Рациональная геометрия — экономия на строительстве
✔ Срок реализации — от 3 месяцев

Кому подойдёт этот дом?

  • Семье с двумя детьми
  • Тем, кто хочет компактный, но функциональный дом
  • Для постоянного проживания
  • Для загородного дома выходного дня
  • Для строительства на небольшом участке

Итог

«Дельта» — это пример грамотного проектирования, где на площади 82,3 м² удалось разместить всё необходимое для комфортной жизни без лишних квадратных метров. Дом сочетает доступную стоимость, продуманную планировку и современные инженерные решения.

Готовы узнать точную стоимость строительства под ваш участок?

Мы рассчитаем смету, подберём комплектацию и ответим на все вопросы по инженерии и срокам.
👉 Оставьте заявку прямо сейчас: