Top.Mail.Ru
Проекты

Проект одноэтажного дома «Архитектурная идиллия» 82,30 м² с 3 спальнями

Площадь: 82,30 м² с крыльцом
Количество спален: 3
Цена: от 4 718 900 руб.
Срок строительства: от 3 месяцев
«Архитектурная идиллия» — это функциональный одноэтажный дом с тремя спальнями и продуманной системой хранения. Проект создан для семьи из 3–5 человек, которым важно четкое зонирование, комфортная кухня-гостиная и отдельный технический блок.

Получите подробную консультацию и забронируйте строительство дома «Архитектурная идиллия» прямо сейчас — перейдите по ссылке

Архитектурная концепция

Дом выполнен в современном стиле с лаконичным фасадом:
  • Двускатная кровля
  • Светлая декоративная отделка
  • Акцентная отделка фронтона
  • Компактное крыльцо
  • Рациональные габариты без лишних архитектурных усложнений
Простая геометрия позволяет оптимизировать бюджет строительства без потери эстетики.

Планировка и функциональность

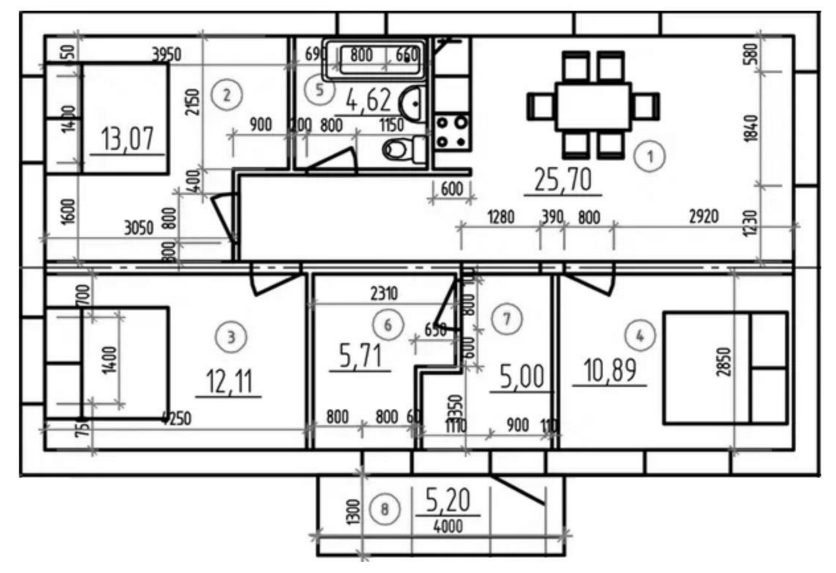
Общая площадь: 82,30 м²

Кухня-гостиная — 25,70 м²
Объединена с коридором в единое пространство с выходом на террасу. Предусмотрена ниша под кухонный гарнитур.
Спальный блок — 13,07 / 12,11 / 10,89 м²
Три изолированные спальни расположены в тихой части дома. В одной из комнат предусмотрена ниша под шкаф.
Техническое помещение — 5,71 м²
Отдельная котельная с постирочной зоной.
Санузел — 4,62 м²
Совмещённый, с возможностью установки полноразмерной ванны.
Прихожая — 5,00 м²
Глубокая ниша под систему хранения (шкаф).

Преимущества планировки:

  • Чёткое разделение общественной и приватной зон
  • Скрытые ниши для хранения в кухне, коридоре и спальне
  • Три полноценные спальни при компактной площади
  • Рациональное использование каждого квадратного метра

Конструктив и материалы

Фундамент

Свайно-ростверковый с монолитными полами.

Стены

Газоблок D500:
  • Наружные стены 400 мм
  • Перегородки 100 мм
  • Несущая перегородка 200 мм

Кровля

  • Двускатная
  • Металлочерепица
  • Утепление 200 мм

Окна и входная дверь

  • Металлопластиковые окна (профиль 70 мм)
  • Металлическая дверь с терморазрывом

Инженерные системы

Проект включает:
  • Тёплый пол
  • Электрокотёл 9 кВт
  • Разводку электрики (45 точек)
  • Водонагреватель 80 л
  • Скважину (до 40 м)
  • Выгребную яму (3 кольца)
  • Полную разводку водоснабжения и канализации

Комплектации и стоимость

🔹 Тёплый контур — 4 718 900 руб.

Базовая конструкция дома с фундаментом, стенами, кровлей и выводами коммуникаций.

🔹 WhiteBox — 5 911 600 руб.

Дополнительно:
  • Штукатурка стен
  • Стяжка пола
  • Тёплый пол
  • Инженерная разводка
  • Водосточная система

🔹 Чистовая отделка — 6 459 600 руб.

Включает:
  • Фасад «Короед»
  • Натяжные потолки
  • Ламинат и керамогранит
  • Межкомнатные двери
  • Сантехника
В стоимость входит крыльцо.

Кому подойдёт этот проект?

  • Семье с двумя детьми
  • Тем, кто ищет дом с тремя спальнями до 85 м²
  • Для постоянного проживания за городом
  • В качестве комфортного семейного дома

Почему выбирают «Архитектурную идиллию»?

✔ Три изолированные спальни
✔ Продуманная система хранения
✔ Рациональная площадь — 82,30 м²
✔ Строительство от 3 месяцев
✔ Оптимальное соотношение цены и площади

Получите подробную консультацию и забронируйте строительство дома «Архитектурная идиллия» прямо сейчас — перейдите по ссылке