Top.Mail.Ru
Проекты

Одноэтажный дом «Холст» 68,2 м² — 2 спальни

Площадь: 68,2 м² (с крыльцом)
Количество спален: 2
Цена: от 4 393 000 руб.
Срок строительства: от 3 месяцев

Компактный и удобный дом для семьи

«Холст» — это продуманный одноэтажный дом площадью 68,2 м², идеально подходящий для семьи из 2–4 человек. Проект сочетает компактность и полноценный набор помещений для комфортного круглогодичного проживания.
Планировка выполнена без проходных комнат, что обеспечивает приватность каждой зоны.

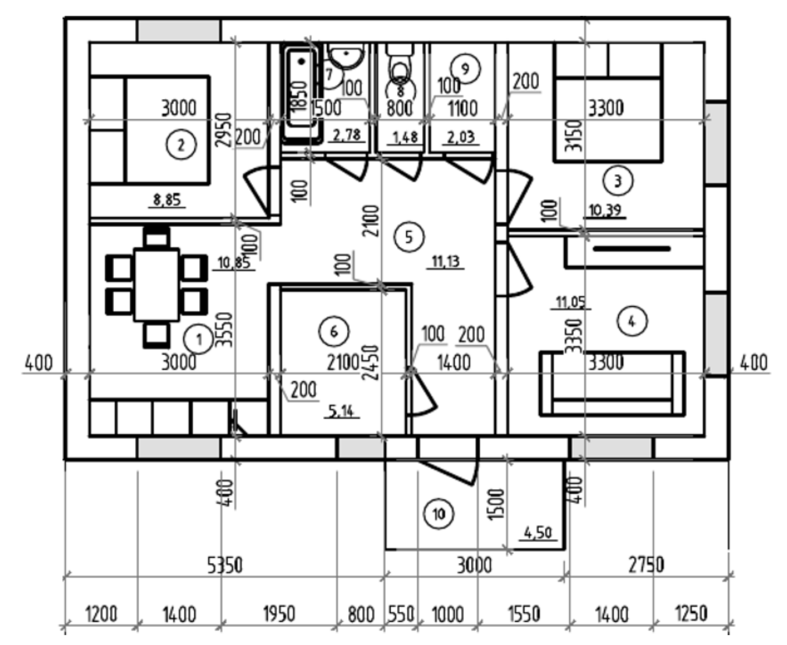
Планировочное решение

Согласно техническим характеристикам проекта, дом включает:
  • Кухня — 10,85 м²
  • Отдельное помещение для приготовления пищи.
  • Гостиная — 11,05 м²
  • Изолированная комната для отдыха и приема гостей.
  • Спальный блок
  • спальня — 8,85 м²
  • спальня — 10,39 м²
  • Раздельный санузел
  • ванная — 2,78 м²
  • туалет — 1,48 м²
  • Гардероб — 2,03 м²
  • Выделенное помещение для хранения вещей.
  • Хозяйственный блок
  • техническое помещение — 5,14 м²
  • коридор — 11,13 м²

Преимущества планировки

✔ Раздельные ванная и туалет — удобно для семьи
✔ Отдельная кухня и гостиная
✔ Две изолированные спальни
✔ Гардероб и техпомещение для хранения
✔ Отсутствие проходных комнат

Технология строительства

Проект реализуется по капитальной технологии:
  • Свайно-ростверковый фундамент с монолитными полами
  • Стены из газоблока D500 (400 мм)
  • Межкомнатные перегородки из газоблока
  • Двускатная кровля из металлочерепицы
  • Утепление перекрытия 200 мм
  • Металлопластиковые окна (профиль 70 мм)
  • Входная дверь с терморазрывом
Дом подходит для постоянного проживания.

Комплектации и стоимость

Проект доступен в нескольких вариантах:
  • Тёплый контур (черновая отделка) — 4 393 000 руб.
  • WhiteBox (предчистовая отделка) — 5 480 000 руб.
  • Чистовая отделка — 6 415 000 руб.
В зависимости от комплектации включаются:
  • теплые полы и электрокотел 9 кВт
  • разводка коммуникаций
  • бурение скважины
  • монтаж выгребной ямы
  • оштукатуривание стен
  • натяжные потолки
  • напольные покрытия
  • межкомнатные двери
  • фасад из кирпича

Закажите консультацию

Хотите рассчитать строительство дома «Холст» под ваш участок и подобрать оптимальную комплектацию?
👉 Оставьте заявку на консультацию — подготовим подробный расчет и ответим на все вопросы по проекту.