Top.Mail.Ru
Проекты

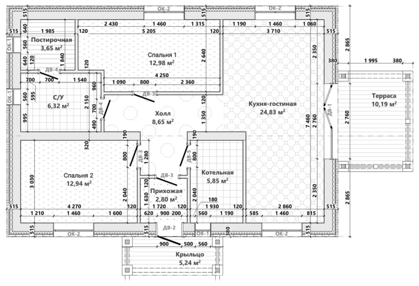
Одноэтажный дом «Лесная усадьба» — 83,26 м² с террасой 10,19 м²

Общая площадь с крыльцом: 83,26 м² + терраса 10,19 м²
Количество спален: 2
Срок строительства: от 3 месяцев
Цена: от 4 831 000 руб.
«Лесная усадьба» — это уютный одноэтажный дом с продуманной планировкой, отдельной постирочной и четким разделением активной и приватной зон. Проект идеально подходит для семьи из 2–4 человек и комфортного круглогодичного проживания.

Получите индивидуальный расчет стоимости строительства дома «Лесная усадьба» — перейдите по ссылке

Планировка и функциональное зонирование

🔹 Кухня-гостиная — 24,83 м²

Светлое пространство с выходом на террасу 10,19 м². Зона идеально подходит для семейных ужинов и отдыха.

🔹 Спальный блок — 25,92 м²

Две изолированные спальни:
  • 12,98 м²
  • 12,94 м²
Комнаты равнозначные по площади — удобное решение для семьи с ребенком.

🔹 Постирочная — 3,65 м²

Отдельное помещение для бытовых нужд, позволяющее убрать хозяйственные процессы из жилых зон.

🔹 Входная и хозяйственная группа — 23,62 м²

  • Холл — 8,65 м²
  • Санузел — 6,32 м²
  • Котельная — 5,85 м²
  • Прихожая — 2,80 м²

Особенности планировки:

✔ Smart-зонирование
✔ Отдельная постирочная
✔ Просторный санузел
✔ Выход на террасу из общей зоны

Конструктив и материалы

Фундамент

Свайно-ростверковый с монолитными полами.

Стены

Газоблок D500:
  • Наружные стены 400 мм
  • Перегородки 100 мм
  • Несущая перегородка 300 мм

Кровля

  • Двускатная
  • Металлочерепица
  • Утепление 200 мм

Окна и дверь

  • Металлопластиковые окна (профиль 70 мм)
  • Металлическая дверь с терморазрывом

Инженерные системы

Дом предусматривает:
  • Систему теплого пола (шаг 150 мм)
  • Электрокотел 9 кВт
  • Разводку электрики (50 точек)
  • Водонагреватель 80 л
  • Скважину (до 40 м)
  • Выгребную яму (3 кольца)
  • Вентиляцию в санузле, постирочной и кухне-гостиной

Комплектации и стоимость

🔹 Тёплый контур — 4 831 000 руб.

Фундамент, стены, кровля, окна, дверь, вывод коммуникаций.

🔹 WhiteBox (предчистовая отделка) — 6 065 000 руб.

  • штукатурка стен
  • стяжка пола
  • теплый пол и отопление
  • разводка инженерии
  • водосточная система

🔹 Чистовая отделка — 7 150 000 руб.

  • фасад кирпич
  • натяжные потолки
  • ламинат и керамогранит
  • межкомнатные двери (6 шт.)
  • сантехника
В стоимость входит крыльцо.

Дополнительные услуги (по желанию)

  • Монтаж радиаторов — 110 000 руб.
  • Отмостка — 165 000 руб.
  • Терраса 3,7 × 2,755 м — 200 000 руб.

Кому подойдет проект «Лесная усадьба»?

  • Семье из 2–4 человек
  • Тем, кто ищет дом до 85 м²
  • Для загородного проживания
  • В качестве уютного дома выходного дня

Преимущества проекта

✔ Рациональная площадь
✔ 2 изолированные спальни
✔ Отдельная постирочная
✔ Терраса 10,19 м²
✔ Строительство от 3 месяцев
✔ Оптимальный бюджет

Получите индивидуальный расчет стоимости строительства дома «Лесная усадьба» — перейдите по ссылке