Top.Mail.Ru
Проекты

Одноэтажный дом «Урал» 86,65 м² — 3 спальни

Площадь: 86,65 м² (с крыльцом)
Количество спален: 3
Цена: от 4 937 000 руб.
Срок строительства: от 3 месяцев

Современный семейный дом с продуманной планировкой

«Урал» — это компактный и функциональный одноэтажный дом площадью 86,65 м², идеально подходящий для семьи из 3–5 человек. Планировка спроектирована с максимальной эффективностью использования пространства — без лишних коридоров и «пустых» зон.
В основе концепции — разделение на приватную и общую части дома, что обеспечивает комфорт всем членам семьи.

Планировочное решение

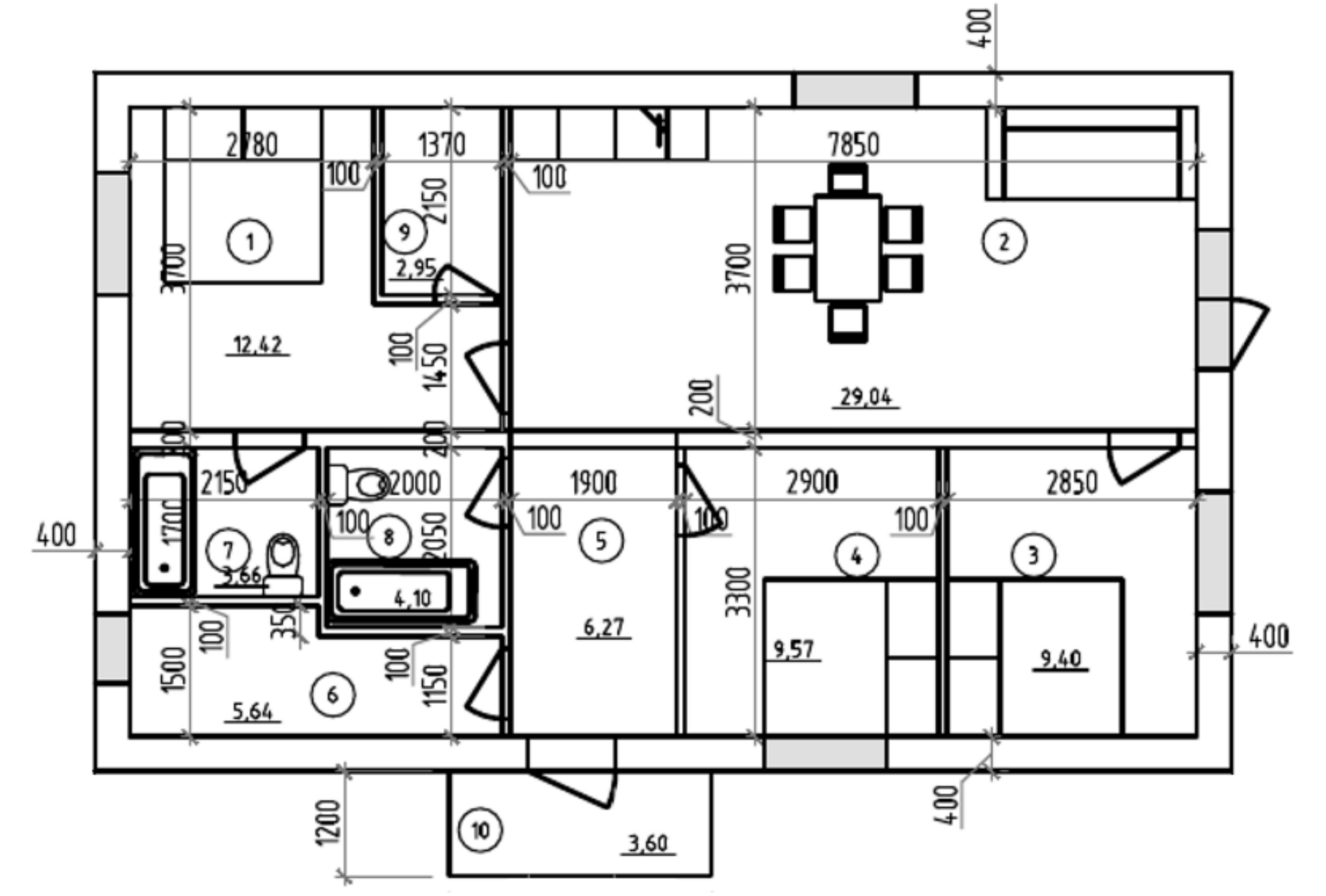
Согласно техническому описанию проекта, дом включает:
  • Кухня-гостиная — 29,04 м²
  • Просторная зона отдыха и приема гостей с выходом под будущую террасу.
  • Мастер-спальня — 19,03 м²
  • Полностью автономный блок:
  • спальня — 12,42 м²
  • личный гардероб — 2,95 м²
  • индивидуальный санузел — 3,66 м²
  • Детский блок — 18,97 м²
  • Две изолированные комнаты площадью 9,57 м² и 9,40 м².
  • Хозяйственный блок — 16,01 м²
  • общий санузел — 4,10 м²
  • техническое помещение — 5,64 м²
  • коридор — 6,27 м²
Такое зонирование обеспечивает приватность родителей и удобство для детей.

Конструктив и технологии строительства

Проект «Урал» реализуется по надежной технологии капитального строительства
  • Свайно-ростверковый фундамент с монолитными полами
  • Стены из газоблока D500 (толщина 400 мм)
  • Несущие и межкомнатные перегородки из газоблока
  • Двускатная кровля из металлочерепицы
  • Утепление перекрытия 200 мм
  • Металлопластиковые окна (профиль 70 мм)
  • Входная дверь с терморазрывом
Дом рассчитан на круглогодичное проживание.

Комплектации и стоимость

Проект доступен в нескольких вариантах:
  • Тёплый контур (черновая отделка) — 4 937 000 руб.
  • WhiteBox (предчистовая отделка) — 6 168 000 руб.
  • Чистовая отделка — 6 774 000 руб.
В зависимости от комплектации включаются:
  • теплые полы и электрокотел 9 кВт
  • разводка электрики и водоснабжения
  • бурение скважины
  • монтаж выгребной ямы
  • оштукатуривание стен
  • натяжные потолки
  • напольные покрытия
  • межкомнатные двери
  • фасад «Короед»

Почему стоит выбрать «Урал»?

✔ Три полноценные спальни
✔ Просторная кухня-гостиная почти 30 м²
✔ Мастер-зона с собственным санузлом
✔ Оптимальная площадь без переплаты за лишние метры
✔ Подходит для постоянного проживания

Закажите консультацию

Хотите рассчитать стоимость строительства на вашем участке или узнать, какая комплектация подойдет именно вам?
👉 Оставьте заявку на консультацию — мы подготовим индивидуальный расчет и ответим на все вопросы по проекту «Урал».